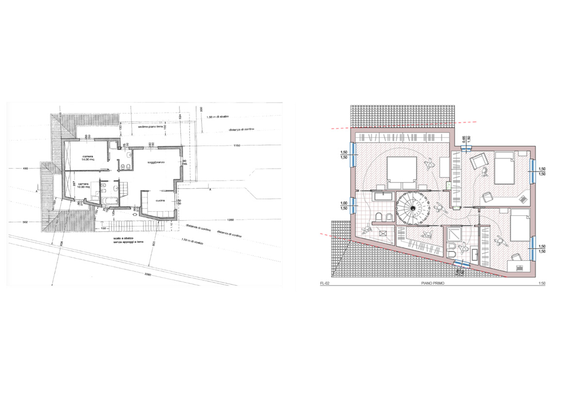
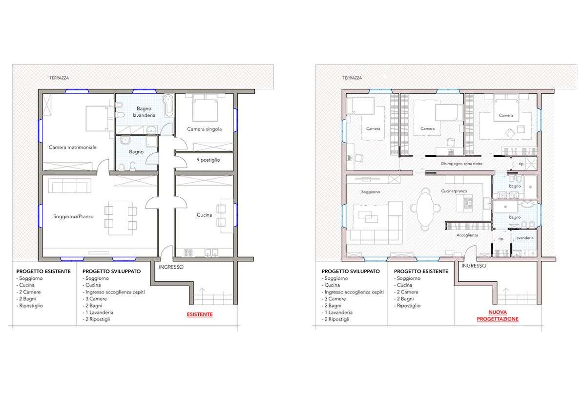
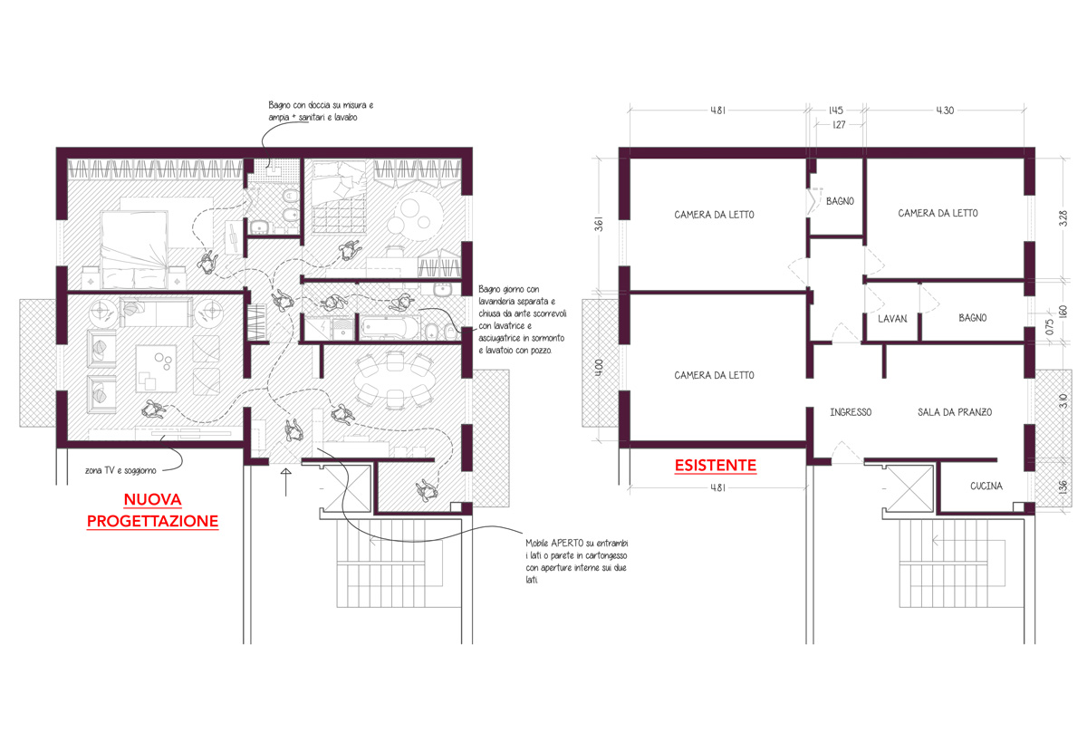
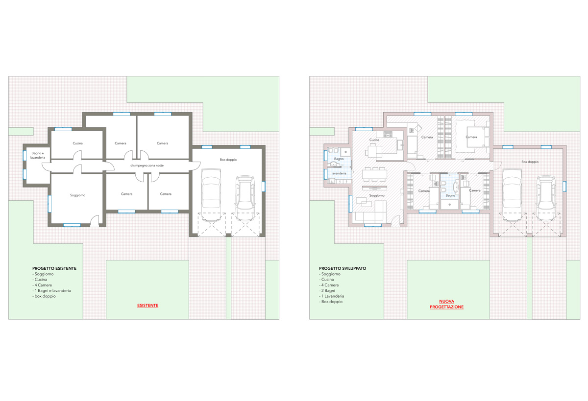
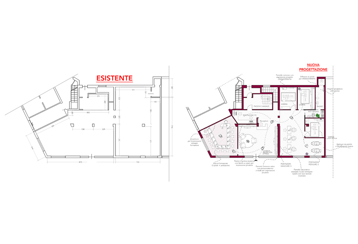
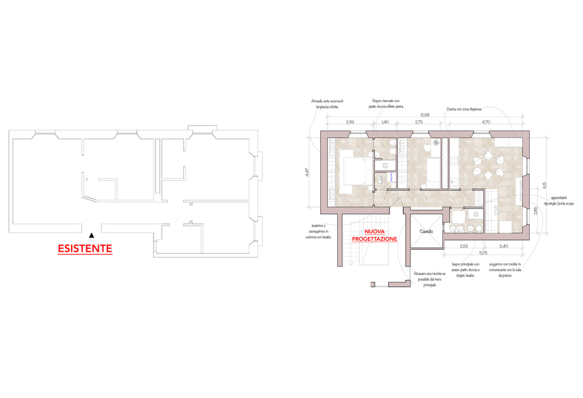
Prima e Dopo

Come dare più valore all'immobile

Stufi dei soliti spazi o il progetto non vi soddisfa? Basta poco per dare un nuovo look alla propria casa, anche di nuova costruzione. Dalla planimetria dello stato di fatto dell’edificio possiamo progettare l’intervento di ristrutturazione più consono alle vostre esigenze abitative e seguendo tutto l’iter: dal cantiere alla realizzazione finale fino all’arredamento.

Prima e Dopo

Prima e Dopo

Prima e Dopo

Prima e Dopo

Prima e Dopo

Prima e Dopo

Prima e Dopo

Prima e Dopo

Prima e Dopo

Prima e Dopo

Prima e Dopo

Prima e Dopo

Ottieni
Informazioni

per maggiori informazioni compila il form.

Il nostro personale qualificato sarà a disposizione per rispondere alle tue richieste e alle specifiche esigenze relative a ogni progetto su misura.

 * Acconsento a che i miei dati personali vengano utilizzati in accordo con la Privacy e Cookie Policy

Autorizzo il trattamento dei miei dati personali per essere aggiornato sui nuovi arrivi e per le finalità di marketing diretto correlate ai servizi offerti.